

ЖК Нова Корея
Автор/автор проєкту: Ольга Петровська, Вікторія Мисько
Назва компанії: Petrovska Design
Телефо н: +380 93 638 5167
Ел. Пошта: petrovska.design@gmail.com
Рік реалізації проєкту: 2025 (в процесі реалізації)
Країна та місто реалізації: Україна, Вінниця
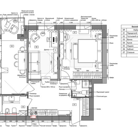
Площа проєкту: 74
Фотограф: Візуалізації - Вікторія Мисько
Проєкт двокімнатної квартири побудований на поєднанні спокійної світлої бази, глибоких теплих відтінків дерева та виразних акцентних кольорів. Простір вирішений у сучасній естетиці з делікатними елементами арт-деко: декоративні панелі, м’які текстури, латунні деталі та сценарне освітлення формують атмосферу комфорту й візуальної цілісності. Кожна зона має власний характер, але водночас підтримує єдину стилістичну лінію: кухня — більш графічна та смілива завдяки теракотовому фартуху, спальня — камерна й м’яка, ванна кімната — стримана, з акцентом на тактильність матеріалів. Основна ідея проєкту — створити інтер’єр, який поєднує естетику, функціональність і відчуття щоденного спокою.



















